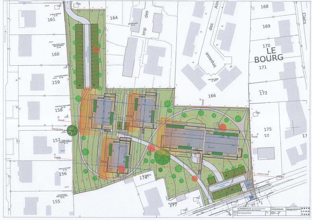
A la publication du permis de construire, il est immédiatement apparu que le projet Bouygues n’a rien à voir avec celui décrit dans le PLU. Pour s’en convaincre, nous rappelons ci-dessous le texte du PLU (surligné en vert) que nous comparons avec un texte descriptif tiré de la notice Bouygues (surligné en rouge). Nos lecteurs pourront se faire leur propre opinion avec la lecture du plan masse affiché plus bas sur cette page.
LE REVE (PLU)
Le programme développé sur le terrain de l’Aubrière consiste en un jardin public, un cheminement de circulations douces et une petite opération de logements. Cette opération sera composée de maisons accolées implantées dans la pente. Le linéaire des constructions est estimé à 75 mètres avec des constructions d’une hauteur R+C. Le nombre de logements potentiels qui en résulte est de 15 logements.
LA REALITE (Permis de construire *)
Le permis de construire sur le terrain de l’Aubrière consiste en un espace vert urbanisé, un cheminement de circulations douces entre les immeubles et une opération de 4 bâtiments dont un bâtiment collectif. Cette opération est composée de bâtiments implantés sur la totalité du terrain. Le linéaire de construction est estimé à plus de 200 mètres avec des constructions d’une hauteur R+1+C. Le nombre de logements qui en résulte est de 54.
Qu’est ce qui peut expliquer une telle différence entre la proposition du PLU et le descriptif du permis de construire approuvé par les mêmes autorités municipales ?
Certainement pas la seule pression du promoteur. Utiliser cet argument serait un mensonge éhonté. Un promoteur ne peut obtenir le permis de construire que si le contexte du PLU le permet ou encore si l’autorité municipale l’y autorise, et uniquement dans ces cas-là. Sur ce point précis, il n’y aucun doute. Il est donc possible de conclure que la contrainte du PLU sur ces parcelles a autorisé cette perspective et que c’est à propos qu’elle a été offerte au promoteur, quitte pour lui d’affronter des recours*.
De fait, rien n’a été réellement mis en place dans le PLU pour maîtriser le développement raisonné de la commune et tout particulièrement de l’espace de l’Aubrière. Le bureau de l’urbanisme n’y est pour rien, il exécute la volonté « politique ».


A SUIVRE
* Texte rédigé par nos soins sur la base du contenu du Permis de Construire
** lors du Conseil Municipal de septembre 2021 il a été fermement annoncé que critiquer les dispositions du PLU et le projet qui en découle revenait à critiquer le travail des professionnels du service de l’urbanisme.